Септик Тверь Аэро 1,1
| Артикул | 000381 |
| Количество человек | до 7 |
| Залповый сброс | 2100 л |
| Производительность | 1.1 m³ |
| Материал | полипропилен |
| Тип | горизонтальный |
| Предназначение | для дома, коттеджа, туалета, дачи, кухни |
148700руб.
день
доставка
Тверь Аэро 1,1 под ключ
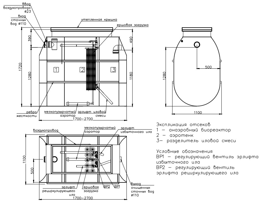
Принцип работы Тверь Аэро 1,1
Основной принцип работы септика «Тверь Аэро» основан на системе аэрации. Эта система работает путем введения кислорода в сточные воды для уменьшения процессов бактериального разложения, что приводит к улучшению качества воды. Кислород подается через ряд труб, которые соединены с воздушным насосом, расположенным снаружи дома. Воздушный насос подает богатый кислородом воздух в сточные воды и помогает расщеплять органические материалы более эффективно, чем традиционные методы.Преимущества Тверь Аэро 1,1
Основным преимуществом использования септика «Тверь Аэро» является его способность снижать эксплуатационные расходы, связанные с традиционными методами. Как уже упоминалось ранее, этот тип системы использует процесс аэрации, который помогает разлагать органические материалы быстрее и эффективнее, чем традиционные методы. Кроме того, этот тип системы занимает очень мало места по сравнению с другими типами систем, что делает его идеальным для тех, у кого ограниченный двор или тесное пространство вокруг дома. Наконец, этот тип системы уменьшает запахи, связанные с традиционными системами, а также уменьшает накопление осадка в резервуарах, что со временем может привести к засорам и другим проблемам.Установка Тверь Аэро 1,1
Установка септика «Тверь Аэро» требует определенных знаний и навыков от профессионалов, специализирующихся на этих системах, но она может быть достаточно простой, как только вы поймете, как она работает. Во-первых, вам понадобятся точки доступа для входящих и выходящих сточных вод; обычно они подключаются через водопроводные системы вашего дома или внешние дренажные канавы у линии вашей собственности в зависимости от местных правил и законов, регулирующих системы утилизации отходов в вашем регионе. Кроме того, вам понадобятся точки доступа для подачи богатого кислородом воздуха снаружи дома с помощью воздушного насоса, а также выходы внутри дома, позволяющие отводить очищенные сточные воды обратно в общественную канализацию или частные стоки в зависимости от того, что разрешено в вашем регионе (еще раз проверьте местные правила). Наконец, после установки всех точек доступа все должно быть плотно закрыто, чтобы не было запахов, а также чтобы ничего не попало в загрязненные зоны, например, в источники грунтовых вод у границы вашего участка (проверьте местные правила).
| Количество человек | до 7 |
| Залповый сброс | 2100 л |
| Производительность | 1.1 m³ |
| Материал | полипропилен |
| Тип | горизонтальный |
| Предназначение | для дома, коттеджа, туалета, дачи, кухни |
Похожие товары




